Bilocale in affitto Milano
Descrizione
FenixGroup propone in affitto un elegante bilocale di circa 45 mq, situato in via Padova 2, al secondo piano di un palazzo signorile degli anni Sessanta dotato di ascensore e servizio di portineria presente tutto il giorno.
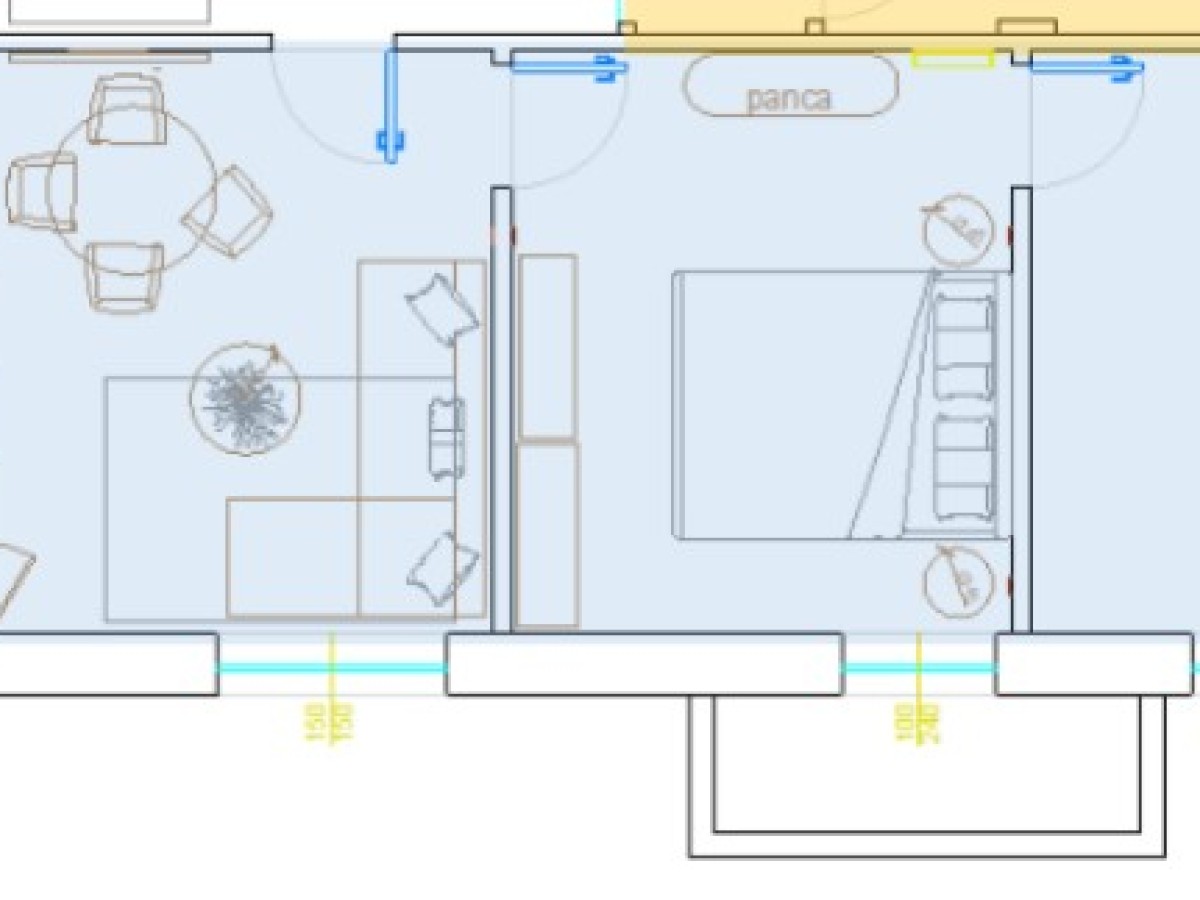
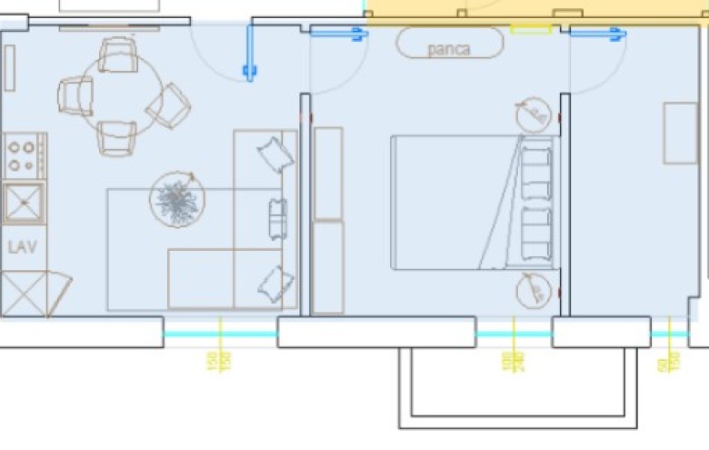
L’appartamento, recentemente ristrutturato a nuovo, si apre su un luminoso soggiorno con cucina a vista dal design moderno e funzionale. La zona notte è composta da una spaziosa camera da letto con porta finestra che conduce a un balcone, offrendo uno spazio esterno riservato e piacevole. Il bagno, finestrato e completo di doccia, presenta finiture eleganti e di ottima qualità.
Tipologia di contratto: contratto transitorio della durata di 12-18 mesi.
Canone mensile: 1000 € + 150 € di spese condominiali
La proprietà dispone di infissi in PVC con doppio vetro, pavimentazione cementata e arredi moderni di pregio che donano all’ambiente un’atmosfera raffinata e accogliente. La soluzione si distingue per la luminosità, le finiture curate e la posizione strategica, ideale per chi desidera vivere in un contesto elegante e ben servito.
L’immobile è ubicato in una zona molto servita, risultando infatti raggiungibili in pochi minuti a piedi supermercato, banca, farmacia, panificio, merceria, chiesa, oratorio, palestra, parrucchieri, tabaccaio, bar, negozio di giardinaggio, ristoranti e pizzerie. Nelle immediate vicinanze si trova altresì il Polo Universitario. Non mancano ottimi collegamenti con i mezzi di trasporto di superficie, quali autobus 55, 62 nonché la fermata della metro MM1/2 Loreto.
Questa descrizione ha valore puramente indicativo e non costituisce elemento contrattuale.
Dettagli aggiuntivi
Prestazione Energetica
Planimetrie
Superficie: 45 mqMappa
Virtual Tour
L'immobile ti interessa?
Visitare questo immobile?
Proprietà proposta da:
 Affiliato: FenixGroup - Milano Loreto
                            Affiliato: FenixGroup - Milano Loreto                             
    
     
                         
                         
                         
                         
                         
                         
                         
                         
                         
                         
                         
                         
                         
                         
                         
             
             
             
             
             
             
             
             
             
             
             
             
             
             
            