Monolocale in affitto Milano
Descrizione
FenixGroup propone in locazione un accogliente monolocale di circa 35mq, completamente ristrutturato, situato in via Padova 2, al secondo piano di un palazzo signorile degli anni Sessanta dotato di ascensore e servizio di portineria presente tutto il giorno.
L’interno dell’abitazione si apre su un unico ambiente ben organizzato, che unisce in modo armonioso la zona giorno e la zona notte. Lo spazio è arredato con mobili di pregio e pensato per offrire il massimo della funzionalità. La zona giorno è caratterizzata da una cucina a vista funzionale e ben attrezzata, completa di tutto il necessario per cucinare e vivere la quotidianità in modo semplice e confortevole. Mentre nella zona notte è presente un comodo letto matrimoniale, situato vicino alla finestra che dona luminosità all'ambiente. Conclude l'abitazione un comodo bagno finestrato, con doccia e finiture di ottima qualità.
Tipologia di contratto: contratto transitorio della durata di 12-18 mesi.
Canone mensile: 1000 € + 100 € di spese condominiali
La proprietà dispone di infissi in PVC con doppio vetro, pavimentazione cementata e arredi moderni di pregio che donano all’ambiente un’atmosfera raffinata e accogliente. La soluzione si distingue per la luminosità, le finiture curate e la posizione strategica, ideale per chi desidera vivere in un contesto elegante e ben servito.
L’immobile è ubicato in una zona molto servita, risultando infatti raggiungibili in pochi minuti a piedi supermercato, banca, farmacia, panificio, merceria, chiesa, oratorio, palestra, parrucchieri, tabaccaio, bar, negozio di giardinaggio, ristoranti e pizzerie. Nelle immediate vicinanze si trova altresì il Polo Universitario. Non mancano ottimi collegamenti con i mezzi di trasporto di superficie, quali autobus 55, 62 nonché la fermata della metro MM1 Rovereto, MM1 Pasteur e MM1/2 Loreto.
Questa descrizione ha valore puramente indicativo e non costituisce elemento contrattuale.
Dettagli aggiuntivi
Prestazione Energetica
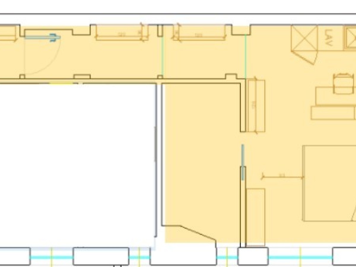
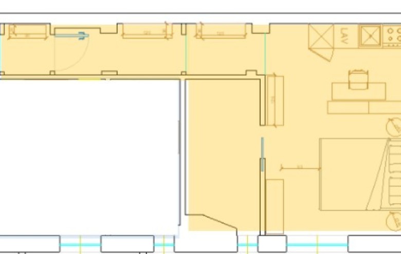
Planimetrie
Superficie: 35 mqMappa
Virtual Tour
L'immobile ti interessa?
Visitare questo immobile?
Proprietà proposta da:
 Affiliato: FenixGroup - Milano Loreto
                            Affiliato: FenixGroup - Milano Loreto                             
    
     
                         
                         
                         
                         
                         
                         
                         
                         
                         
                         
                         
                         
                         
             
             
             
             
             
             
             
             
             
             
             
             
            