Negozio in affitto Milano
Descrizione
FenixGroup propone in locazione ampio locale ad uso ufficio/laboratorio posto al piano semi-interrato in zona Loreto a 250 metri da piazzale Loreto e a meno di 1 km dal Politecnico di Milano.
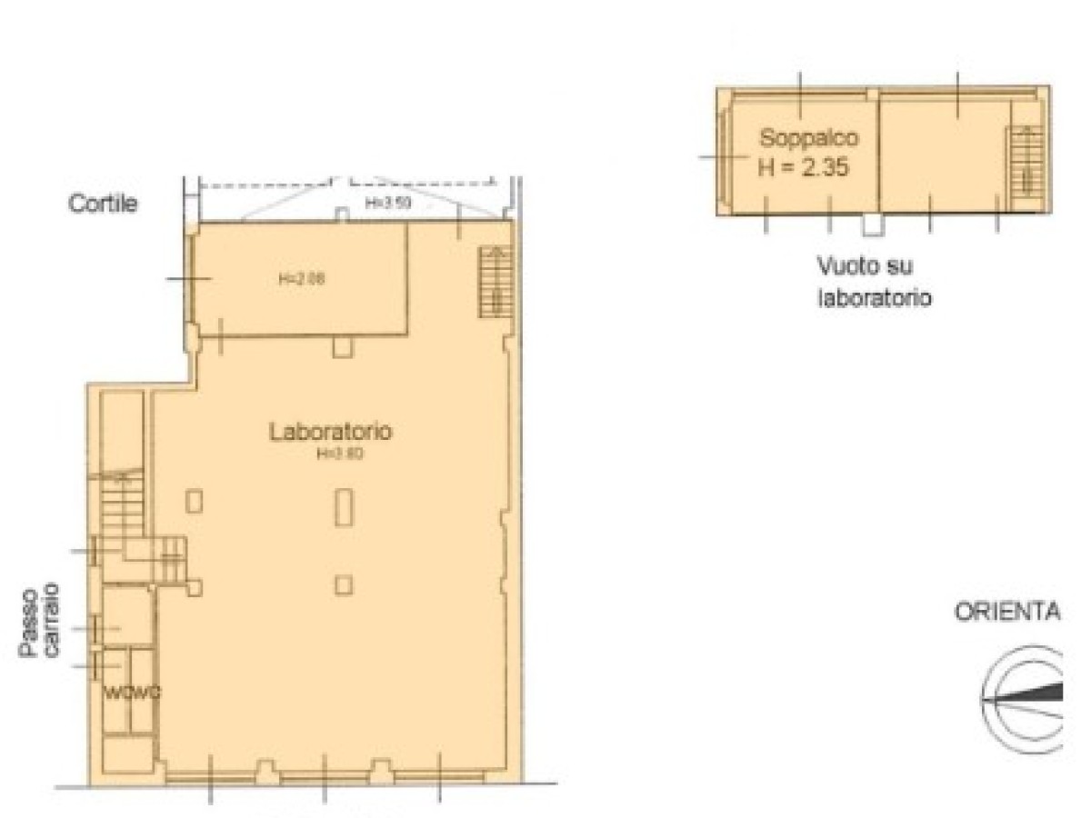
Ingresso al piano rialzato tramite un locale reception/ufficio, da cui si accede a una scala interna che conduce al piano semi-interrato. In questo livello si trova un ampio open space con soffitti alti 3,80 metri, due spaziosi uffici e una sala riunioni. Completano il piano un’area break e una seconda scala interna che porta a un ulteriore locale ad uso ufficio e a un locale archivio. La proprietà è dotata anche di un corpo bagni.
È possibile accedere con l’auto all’interno del condominio per operazioni di carico e scarico.
Tutti gli ambienti sono dotati di riscaldamento e aria condizionata. Le spese condominiali comprendono anche la quota relativa al consumo del riscaldamento. Nella maggior parte degli ambienti sono già installati pavimenti galleggianti e cablaggi per rete dati e alimentazione elettrica, con possibilità di modifica in base alle esigenze.
Dettagli aggiuntivi
Prestazione Energetica
Planimetrie
Superficie: 240 mqMappa
L'immobile ti interessa?
Visitare questo immobile?
Proprietà proposta da:
 Affiliato: FenixGroup - Milano Loreto
                            Affiliato: FenixGroup - Milano Loreto                             
    
     
                         
                         
                         
                         
                         
                         
                         
                         
                         
                         
                         
                         
                         
                         
                         
                         
                         
                         
             
             
             
             
             
             
             
             
             
             
             
             
             
             
             
             
             
            