1/24
2/24
3/24
4/24
5/24
6/24
7/24
8/24
9/24
10/24
11/24
12/24
13/24
14/24
15/24
16/24
17/24
18/24
19/24
20/24
21/24
22/24
23/24
24/24

Dettagli principali

€ 259.000

Rif: car35
Milano (MI), Cologno monzese
Superficie: 85 mq
Locali: 2.0
Camere: 1
Bagni: 1
Ascensore
Piano 1° di 2° piano
Box
Stampa PDF

Bilocale in vendita a Cologno Monzese

Annuncio aggiornato il 03/02/2026 ore 16:29

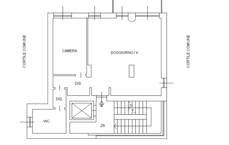
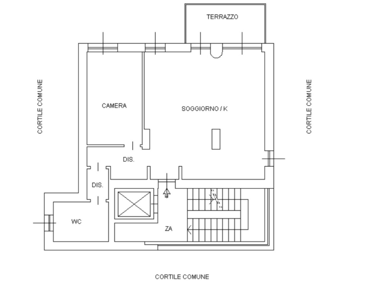
Fenixgroup propone in vendita un bilocale di 85 mq circa in un palazzo di nuovissima costruzione in via Carducci 35 a Cologno Monzese. L’ingresso introduce direttamente in un’ampia e luminosa zona living, pensata per offrire il massimo comfort abitativo, dove la cucina a vista si integra armoniosamente con il salotto di generose dimensioni, creando un ambiente versatile e funzionale, ideale sia per la quotidianità sia per momenti di convivialità.


Dalla zona giorno si accede a un terrazzino di dimensioni contenute con affaccio interno, uno spazio riservato e silenzioso che garantisce tranquillità e rappresenta un piacevole sfogo esterno, perfetto per rilassarsi o per essere arredato con piccoli complementi. La separazione tra zona giorno e zona notte assicura una buona vivibilità degli ambienti.


La zona notte, situata sulla sinistra dell’ingresso, è composta da una camera matrimoniale ben organizzata, facilmente arredabile e valorizzata da un’ottima luminosità naturale grazie alla presenza della finestra. Il bagno, di generose dimensioni, è stato realizzato con particolare attenzione ai dettagli ed è dotato di tutti i comfort, con sanitari nuovi e finiture moderne che conferiscono un aspetto curato e funzionale all’ambiente.


L’immobile è totalmente ristrutturato a nuovo ed è adatto sia come abitazione principale sia come interessante soluzione ad uso investimento. A completare la proprietà troviamo un comodo box di pertinenza, elemento di grande valore che garantisce praticità e sicurezza.


La zona è ben servita dai mezzi pubblici, con autobus nelle immediate vicinanze e la metropolitana linea M2 facilmente raggiungibile, che consente rapidi collegamenti con Milano. L’area è inoltre comoda per gli spostamenti in auto grazie alla vicinanza alla tangenziale ed è dotata di tutti i principali servizi di quartiere come negozi, supermercati e attività di prima necessità.


Questa descrizione ha valore puramente indicativo e non rappresenta elemento contrattuale.

Dettagli aggiuntivi


Conservazione: Ristrutturato
Cucina: A vista
Classe: Economica
Ingresso: Condominiale
Esposizione: Interna
Lati liberi: Tre
Aria condizionata
Tipo Condizionatore: Freddo/Caldo

Prestazione Energetica


 
 
 
D
 
 
 

IPE: 175 kWh/m2
Riscaldamento: Centralizzato
Tipo riscaldamento: A pavimento
Nuova costruzione

Planimetrie

Superficie: 85 mq

Mappa

Virtual Tour

L'immobile ti interessa?


Ho letto, compreso e accetto la privacy policy.

Ricevi immobili simili a questo da FENIXGROUP.

Visitare questo immobile?


Proprietà proposta da:


logo Fenixgroup Affiliato: FenixGroup - Milano Opera
Via Emilio Gino Segrè, 24 - 20073 Opera
0247750112
opera@grfenix.com