Quadrilocale in vendita Genova
Descrizione
Fenixgroup, con sede in Via Bergamo 11 a Milano, propone in vendita un elegante e ampio quadrilocale con giardino, vista mare, situato in contesto esclusivo.
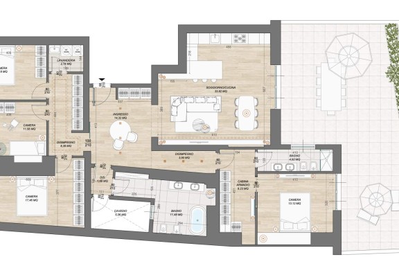
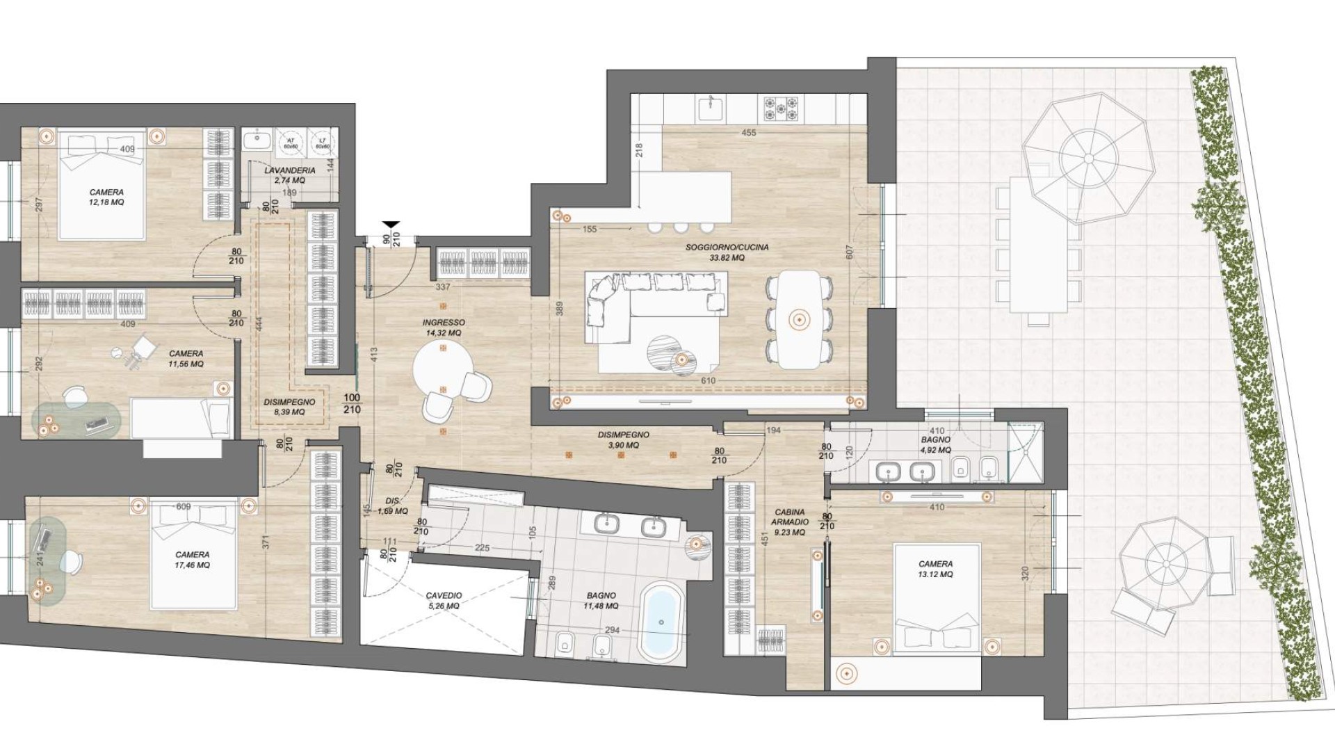
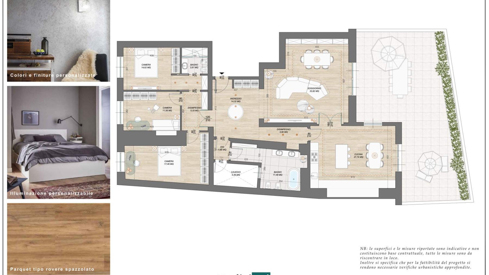
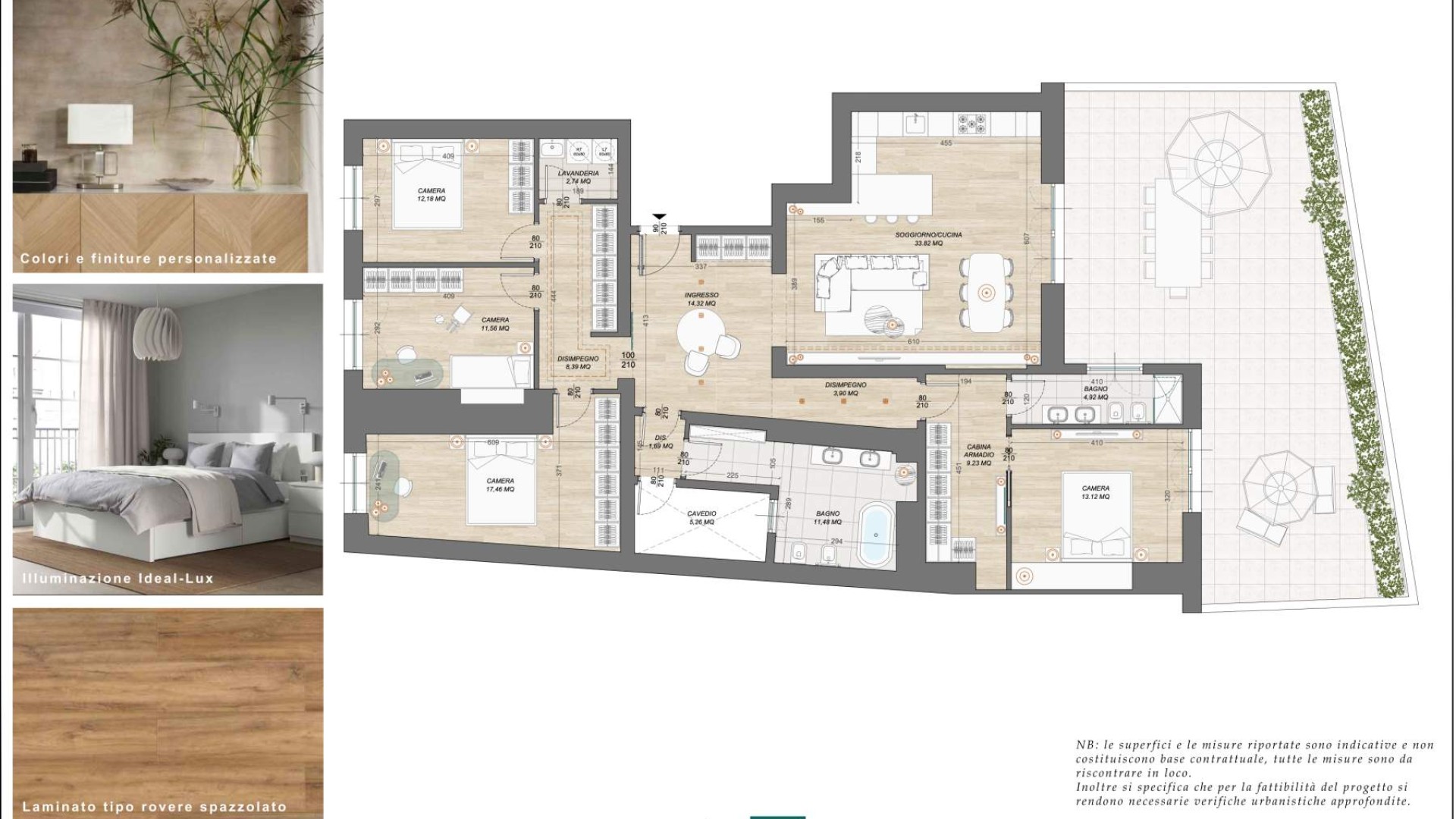
L’immobile si sviluppa su una superficie di circa 201 mq e offre ambienti generosi e ben distribuiti, ideali per chi desidera coniugare comfort abitativo e vista panoramica; è posto al piano nobile dello stabile che con la sua breve distanza dal mare, oltre ad altri punti di interesse quali piscine, campi da tennis e negozi di prima necessità; determina strategicamente l'ubicazione della proposta.
L’ingresso si apre su un ampio disimpegno con ampi soffitti di rappresentanza che percorrono la totalità dell'immobile, che conduce al primo soggiorno doppio, luminoso e accogliente, con accesso diretto al giardino perfetto per momenti di relax all’aperto o per ospitare. Adiacente si trova un secondo soggiorno, attualmente utilizzato come studio, ma facilmente riconfigurabile come camera matrimoniale padronale, grazie alla sua ampiezza e alla vicinanza con l’attuale camera da letto principale.
Un ulteriore disimpegno conduce alla zona servizi, composta da due bagni comunicanti, entrambi dotati di box doccia, preceduti da un comodo ripostiglio.
Completa la proprietà una spaziosa cucina abitabile, che, date le dimensioni, potrebbe anche ospitare una zona living aggiuntiva. Anche da qui si accede direttamente all’ampio giardino panoramico, vero punto di forza dell’abitazione.
Conclude la proprietà una spaziosa cantina di pertinenza
L’immobile rappresenta una soluzione ideale per chi è alla ricerca di un’abitazione prestigiosa, con spazi versatili e una posizione invidiabile fronte mare.
Questa descrizione ha valore puramente indicativo e non costituisce elemento contrattuale.
Dettagli aggiuntivi
Prestazione Energetica
Planimetrie
Superficie: 201 mqMappa
Virtual Tour
L'immobile ti interessa?
Visitare questo immobile?
Proprietà proposta da:
 Affiliato: FenixGroup - Milano Montenero
                            Affiliato: FenixGroup - Milano Montenero                             
    
     
                         
                         
                         
                         
                         
                         
                         
                         
                         
                         
                         
                         
                         
                         
                         
                         
                         
                         
                         
                         
                         
                         
                         
                         
                         
                         
                         
                         
                         
                         
                         
                         
                         
                         
                         
                         
                         
                         
                         
                         
             
             
             
             
             
             
             
             
             
             
             
             
             
             
             
             
             
             
             
             
             
             
             
             
             
             
             
             
             
             
             
             
             
             
             
             
             
             
             
            