Appartamento in vendita Grottammare
Descrizione
TRILOCALE IN VENDITA A GROTTAMMARE – COMFORT, FUNZIONALITÀ E POSIZIONE STRATEGICA
La FENIXGROUP di San Benedetto del Tronto propone in vendita un grazioso trilocale situato in Via Osvaldo Licini 39, nel cuore di una zona residenziale comoda e ben servita di Grottammare. 
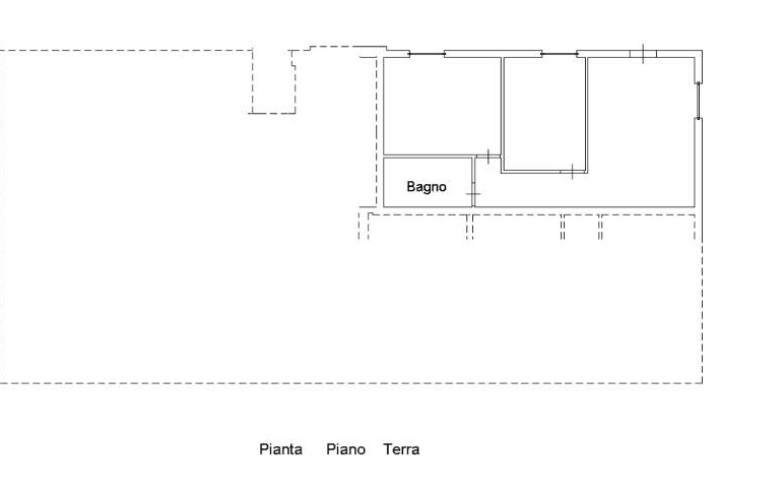
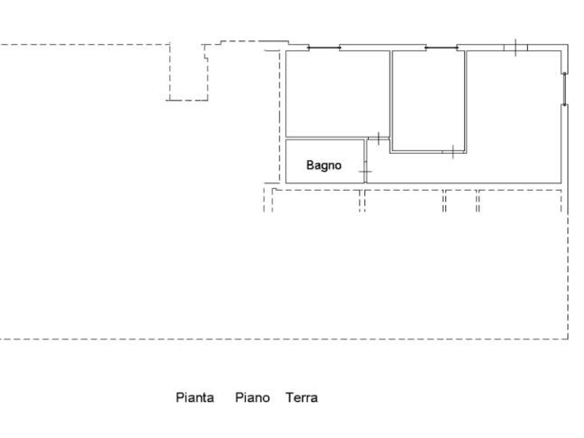
L’appartamento, di circa 62 mq, si trova al piano terra di una palazzina tranquilla ed è la soluzione ideale per chi cerca praticità, funzionalità e comfort, sia come abitazione principale che come investimento.
L’ingresso si apre su una luminosa zona giorno con cucina a vista, un ambiente accogliente e ben organizzato che offre uno spazio conviviale perfetto per la vita quotidiana. 
La disposizione interna è razionale e ben studiata, con un disimpegno che conduce alla zona notte dove si trovano due camere da letto, ideali per una famiglia o per chi desidera una stanza aggiuntiva per ospiti o studio. 
Il bagno, dotato di box doccia e sistema di ventilazione forzata, è funzionale e ben rifinito.
L'appartamento si presenta in ottime condizioni, con pavimentazione in ceramica uniforme in tutti gli ambienti, infissi in legno con doppio vetro che assicurano un buon isolamento termico e acustico, 
riscaldamento autonomo e climatizzazione caldo/freddo, garantendo un ambiente confortevole durante tutto l’anno.
La posizione dell’immobile è uno dei suoi punti di forza: A pochi passi da tutti i principali servizi, negozi, scuole e trasporti, ma in un contesto tranquillo, che offre una qualità di vita equilibrata tra comodità urbana e quiete residenziale.
Questa proposta rappresenta un'ottima opportunità per chi cerca una soluzione abitativa già pronta da vivere o da mettere a reddito, con spazi ben distribuiti e bassi costi di gestione.
Dettagli aggiuntivi
Prestazione Energetica
Planimetrie
Superficie: 62 mqMappa
Virtual Tour
L'immobile ti interessa?
Visitare questo immobile?
Proprietà proposta da:
 Affiliato: FenixGroup - San Benedetto del Tronto
                            Affiliato: FenixGroup - San Benedetto del Tronto                             
    
     
                         
                         
                         
                         
                         
                         
                         
                         
                         
                         
                         
                         
                         
                         
             
             
             
             
             
             
             
             
             
             
             
             
             
            