Appartamento in vendita Milano
Descrizione
FenixGroup propone in vendita un bilocale completamente ristrutturato situato al secondo piano di uno stabile d’epoca in buono stato in Via Padova 65 a pochi passi da Piazzale Loreto e dalla fermata della metropolitana Pasteur
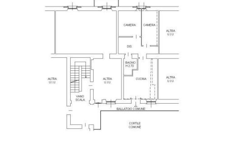
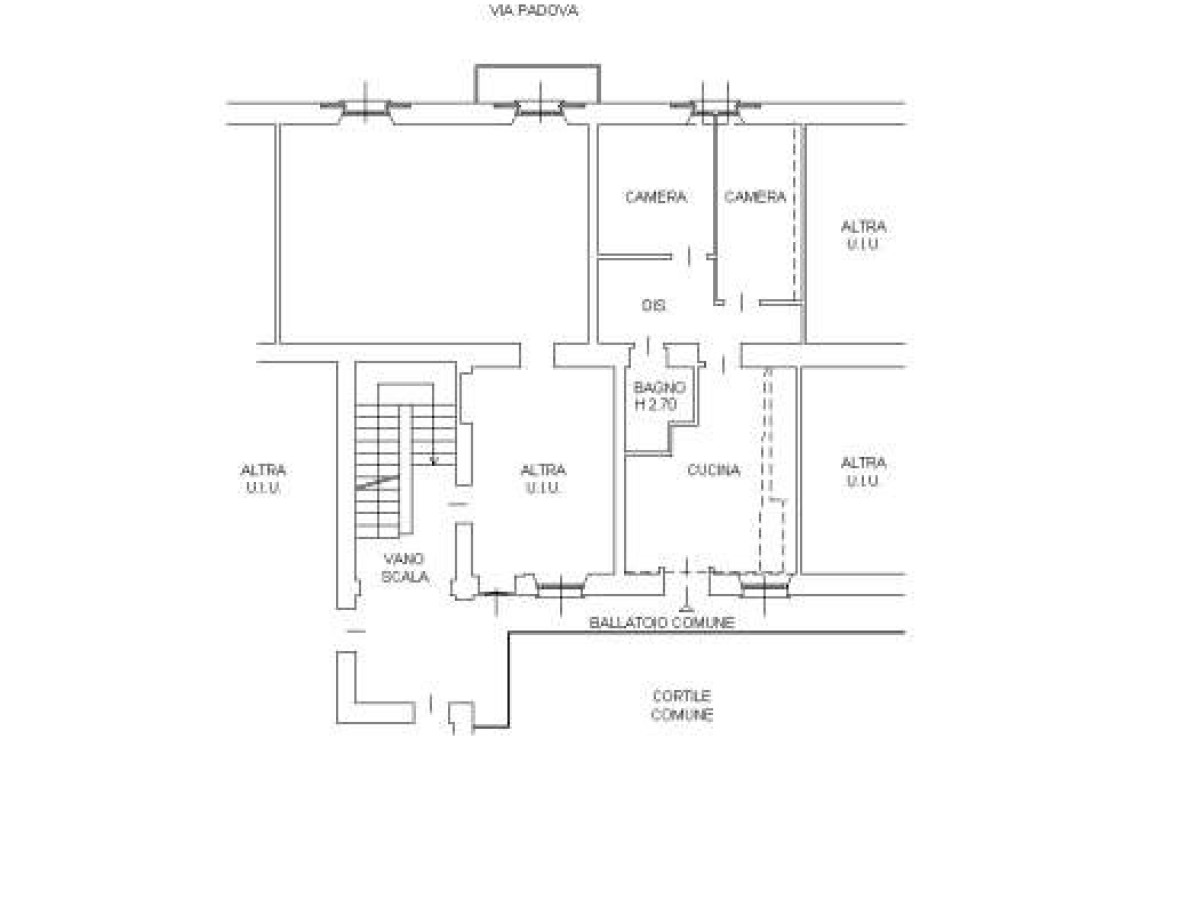
L’appartamento ha una superficie di circa 60 metri quadrati e si presenta in condizioni impeccabili grazie a una ristrutturazione completa ed è stato mai abitato
La disposizione interna prevede un ingresso sul soggiorno con cucina a vista una camera matrimoniale spaziosa una cameretta ideale anche come studio o cabina armadio e un bagno.
Completa la proprietà una cantina di pertinenza
La soluzione è ideale sia per chi cerca una prima casa sia per chi desidera fare un investimento in una zona strategica ben collegata e in forte riqualificazione
Per ulteriori informazioni o per fissare una visita è possibile contattare direttamente i nostri uffici
Via Padova 65 gode di una posizione strategica, a pochi passi da Piazzale Loreto, in una zona ricca di servizi e comodità. Nelle immediate vicinanze si trovano supermercati, farmacie, ristoranti, bar e numerosi negozi di prima necessità, rendendo la quotidianità semplice e funzionale.
La zona è inoltre ottimamente collegata dai mezzi pubblici: la metropolitana MM1 e MM2 (fermata Loreto) è facilmente raggiungibile a piedi, così come la fermata MM1 di Rovereto e MM1 Pasteur. Sono presenti anche diverse linee di autobus di superficie, tra cui la 56 e la 62, che facilitano gli spostamenti in tutta la città.
È attualmente in corso un importante progetto di riqualificazione urbanistica che trasformerà completamente Piazzale Loreto entro il 2026, in vista delle Olimpiadi. L'intervento prevede la creazione di una grande agorà verde, pensata come nuovo centro vitale tra Corso Buenos Aires e Via Padova.
Il progetto darà vita a un'area pubblica moderna e sostenibile, distribuita su tre livelli, con ampie zone pedonali, spazi verdi, terrazze panoramiche e giochi d’acqua. Saranno installate colonnine per la ricarica elettrica, rastrelliere per biciclette e stazioni di bike sharing, con l’obiettivo di promuovere la mobilità dolce e ridurre il traffico urbano.
La riqualificazione prevede anche la realizzazione di nuovi edifici a uso commerciale e ricreativo, che ospiteranno attività legate al tempo libero, allo shopping e alla socialità.
Dettagli aggiuntivi
Prestazione Energetica
Planimetrie
Superficie: 65 mqMappa
Virtual Tour
L'immobile ti interessa?
Visitare questo immobile?
Proprietà proposta da:
 Affiliato: FenixGroup - Milano Loreto
                            Affiliato: FenixGroup - Milano Loreto                             
    
     
                         
                         
                         
                         
                         
                         
                         
                         
                         
                         
                         
                         
                         
                         
                         
                         
                         
                         
                         
                         
                         
                         
             
             
             
             
             
             
             
             
             
             
             
             
             
             
             
             
             
             
             
             
             
             
 
                                