Appartamento in vendita Milano
Descrizione
FenixGroup propone in vendita un appartamento completamente ristrutturato di circa 45 mq, situato al piano terra, pronto per essere abitato o messo a reddito. L'immobile si trova in Via Padova 100, nel cuore di una zona in pieno sviluppo urbano.
L’ingresso conduce a una zona giorno luminosa e ben organizzata, pensata per offrire comfort e funzionalità in un ambiente accogliente.
A seguire si trovano un ampio antibagno e un bagno dotato di box doccia.
La zona notte è stata realizzata interamente su un pratico soppalco, una soluzione intelligente che consente di sfruttare al meglio l’altezza dell’ambiente e ottimizzare gli spazi disponibili.
Si precisa che al piano principale non è presente una stanza da letto separata.
Possibilità di box auto all’interno dello stabile a € 25.000, ideale per chi desidera una soluzione abitativa completa anche sotto il profilo della mobilità.
L’appartamento si presenta in ottime condizioni ed è perfetto sia come prima casa per giovani professionisti o coppie, sia come investimento, grazie alla crescente richiesta in zona e alla possibilità di destinarlo ad affitto breve o B&B.
L’immobile è situato in una posizione strategica, a pochi minuti dalla fermata della metropolitana Loreto (MM1 e MM2), che consente rapidi collegamenti con tutte le principali zone della città. La zona è inoltre ben servita da mezzi pubblici, negozi, supermercati, scuole, servizi di quartiere e si trova al centro di un importante processo di riqualificazione urbana. Via Padova è oggi uno dei quartieri più interessanti di Milano per chi desidera investire: nuovi spazi verdi, interventi architettonici, iniziative culturali e una vivace rete commerciale stanno rendendo questa zona sempre più attrattiva e vivibile. Una soluzione versatile e funzionale, adatta a diverse esigenze abitative o reddituali.
Per maggiori informazioni o per fissare un appuntamento, non esitate a contattarci. Saremo lieti di accompagnarvi nella visita e fornirvi tutti i dettagli.
Dettagli aggiuntivi
Prestazione Energetica
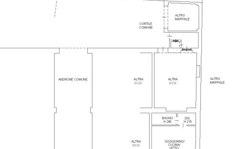
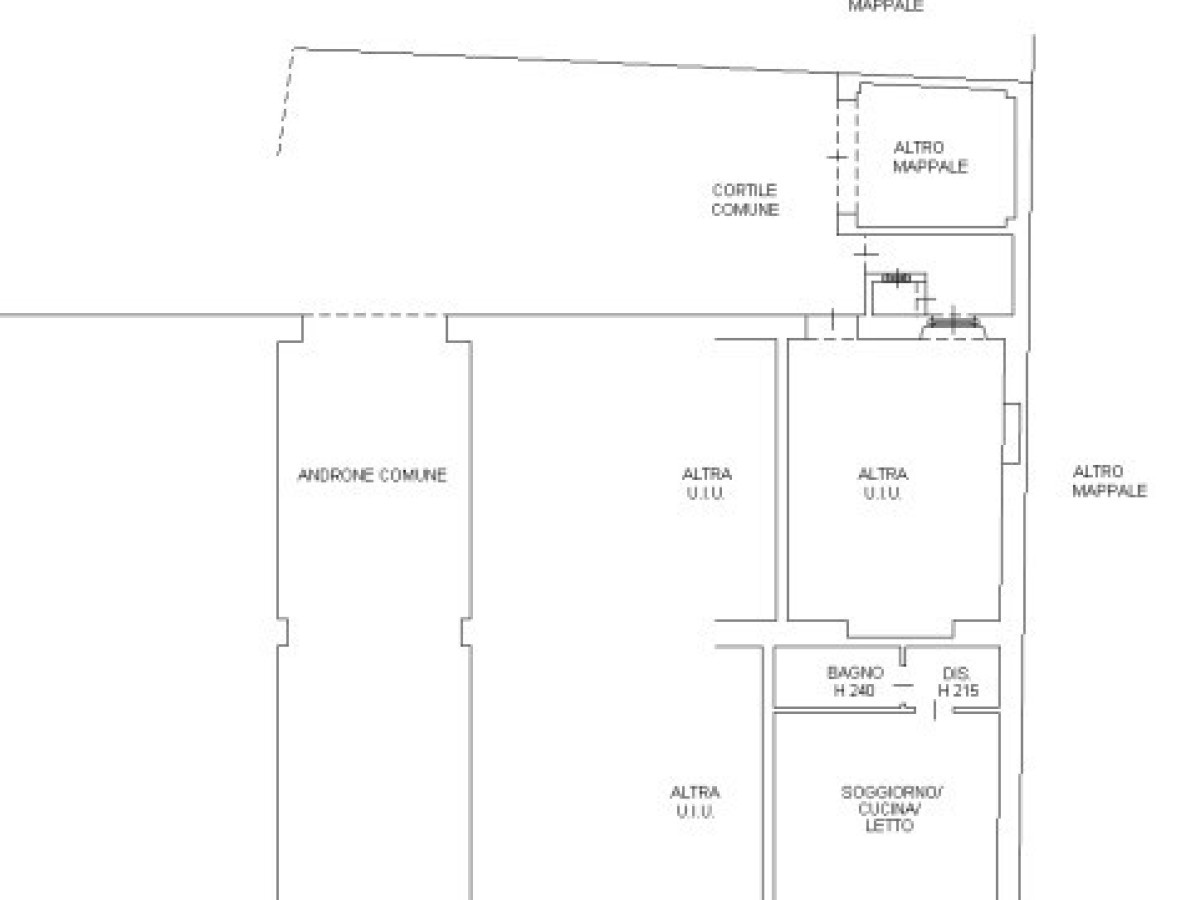
Planimetrie
Superficie: 45 mqMappa
Virtual Tour
L'immobile ti interessa?
Visitare questo immobile?
Proprietà proposta da:
 Affiliato: FenixGroup - Milano Loreto
                            Affiliato: FenixGroup - Milano Loreto                             
    
     
                         
                         
                         
                         
                         
                         
                         
                         
                         
                         
                         
                         
                         
                         
                         
                         
                         
                         
                         
                         
             
             
             
             
             
             
             
             
             
             
             
             
             
             
             
             
             
             
             
            