Attico in vendita Milano
Descrizione
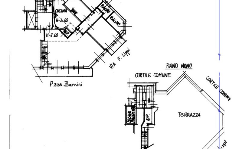
FenixGroup propone in vendita un appartamento esclusivo su due livelli, situato all’ottavo e nono piano di un elegante stabile degli anni Sessanta, dotato di due ascensori e servizio di portineria attivo mezza giornata, in via Sansovino 33 a Milano.
Questa proprietà rappresenta una rara opportunità per chi desidera vivere in un contesto di grande respiro, con spazi generosi, una luminosità avvolgente e una terrazza panoramica privata di eccezionale metratura.
L’immobile è così composto:
• doppio soggiorno
• cucina abitabile
• ripostiglio all’ingresso con appendiabiti
• disimpegno
• tre camere da letto
• doppi servizi finestrati
• tre balconi
• terrazzo panoramico di circa 155 mq
L’ingresso conduce direttamente a un ampio soggiorno doppio, estremamente luminoso, caratterizzato da grandi porte finestre che si affacciano su un primo balcone con vista aperta sulla città. Accanto all’ingresso è presente un comodo ripostiglio, utilizzabile anche come guardaroba o spazio di servizio. La cucina abitabile, spaziosa e funzionale, gode di un’ottima luminosità e di affacci sul tranquillo cortile interno.
La zona notte, ben separata dalla zona giorno, è composta da tre camere da letto: una matrimoniale ampia e finestrata, una seconda camera versatile adatta come studio o stanza per gli ospiti, dotata di balcone, e una terza camera di medie dimensioni. Completano la proprietà due bagni finestrati, ampi e curati nei dettagli.
Elemento distintivo di questa residenza è la terrazza di circa 155 mq al piano superiore, di pari metratura rispetto all’appartamento, collegata da una scala interna. Uno spazio introvabile per la zona, ideale per vivere momenti di relax, organizzare cene all’aperto o creare un’area verde privata con vista panoramica sullo skyline milanese. Al piano è inoltre presente una zona comoda adibita a lavanderia e stireria, perfettamente integrata alla funzionalità della casa.
Le finiture comprendono pavimenti in grès porcellanato effetto legno nella zona giorno e nelle camere, mentre gli infissi sono tutti in doppio vetro, garantendo comfort termico e acustico.
L’appartamento, per caratteristiche, distribuzione e contesto, rappresenta una soluzione ideale per famiglie o per chi cerca un’abitazione raffinata e distintiva in una zona ben servita da mezzi pubblici, negozi e servizi.
È disponibile, con trattativa separata, l’acquisto di un box auto.
Per informazioni e visite, contattare FenixGroup.
Questa descrizione ha valore puramente indicativo e non rappresenta elemento contrattuale.
Dettagli aggiuntivi
Prestazione Energetica
Planimetrie
Superficie: 202 mqMappa
Virtual Tour
L'immobile ti interessa?
Visitare questo immobile?
Proprietà proposta da:
 Affiliato: FenixGroup - Milano Loreto
                            Affiliato: FenixGroup - Milano Loreto                             
    
     
                         
                         
                         
                         
                         
                         
                         
                         
                         
                         
                         
                         
                         
                         
                         
                         
                         
                         
                         
                         
                         
                         
                         
                         
                         
                         
                         
                         
                         
                         
                         
                         
                         
                         
                         
                         
                         
                         
                         
                         
                         
             
             
             
             
             
             
             
             
             
             
             
             
             
             
             
             
             
             
             
             
             
             
             
             
             
             
             
             
             
             
             
             
             
             
             
             
             
             
             
             
             
 
                                