Bilocale in vendita Milano
Descrizione
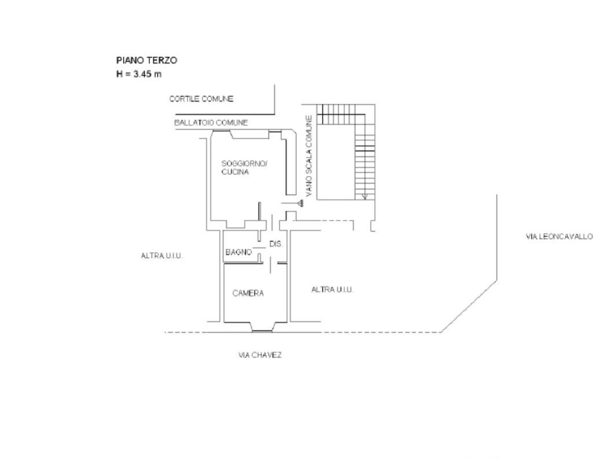
FenixGroup propone in vendita un ampio bilocale di 53mq, situato al terzo piano di un edificio di ringhiera ben conservato, dotato di ascensore risalente agli anni 30, in via Giorgio Chavez 2 a Milano. 
L’ingresso conduce direttamente all’ampia zona giorno, composta da un soggiorno con cucina a vista. Una finestra con affaccio interno illumina l’ambiente, creando un’atmosfera accogliente e riservata.
Un disimpegno introduce alla zona notte, garantendo una separazione funzionale tra gli spazi. Il bagno, moderno e ben rifinito, è dotato di sanitari filo muro e box doccia. La camera da letto matrimoniale, spaziosa e luminosa grazie all'esposizione a sud-ovest.
L’appartamento si presenta in ottimo stato, pronto per essere abitato, con una distribuzione interna razionale e finiture curate. Si configura come la soluzione ideale per single, giovani coppie o per chi desidera effettuare un investimento in una delle aree più dinamiche della città.
L’immobile si trova in una posizione strategica, a pochi passi dalla fermata della metropolitana di Loreto (MM1 e MM2), che garantisce collegamenti rapidi con tutto il resto della città.
Situato in una zona oggetto di un importante processo di riqualificazione urbana, il bilocale beneficia di un contesto in continuo miglioramento: nuovi spazi verdi, interventi architettonici, iniziative culturali e una crescente presenza di attività commerciali e servizi di quartiere stanno contribuendo a trasformare l’area in uno dei poli più dinamici e promettenti di Milano.
Per ulteriori informazioni o per fissare un appuntamento, il team FenixGroup è a vostra disposizione.
Dettagli aggiuntivi
Prestazione Energetica
Planimetrie
Superficie: 53 mqMappa
Virtual Tour
L'immobile ti interessa?
Visitare questo immobile?
Proprietà proposta da:
 Affiliato: FenixGroup - Milano Loreto
                            Affiliato: FenixGroup - Milano Loreto                             
    
     
                         
                         
                         
                         
                         
                         
                         
                         
                         
                         
                         
                         
                         
                         
                         
                         
                         
             
             
             
             
             
             
             
             
             
             
             
             
             
             
             
             
            