Quadrilocale in vendita Milano
Descrizione
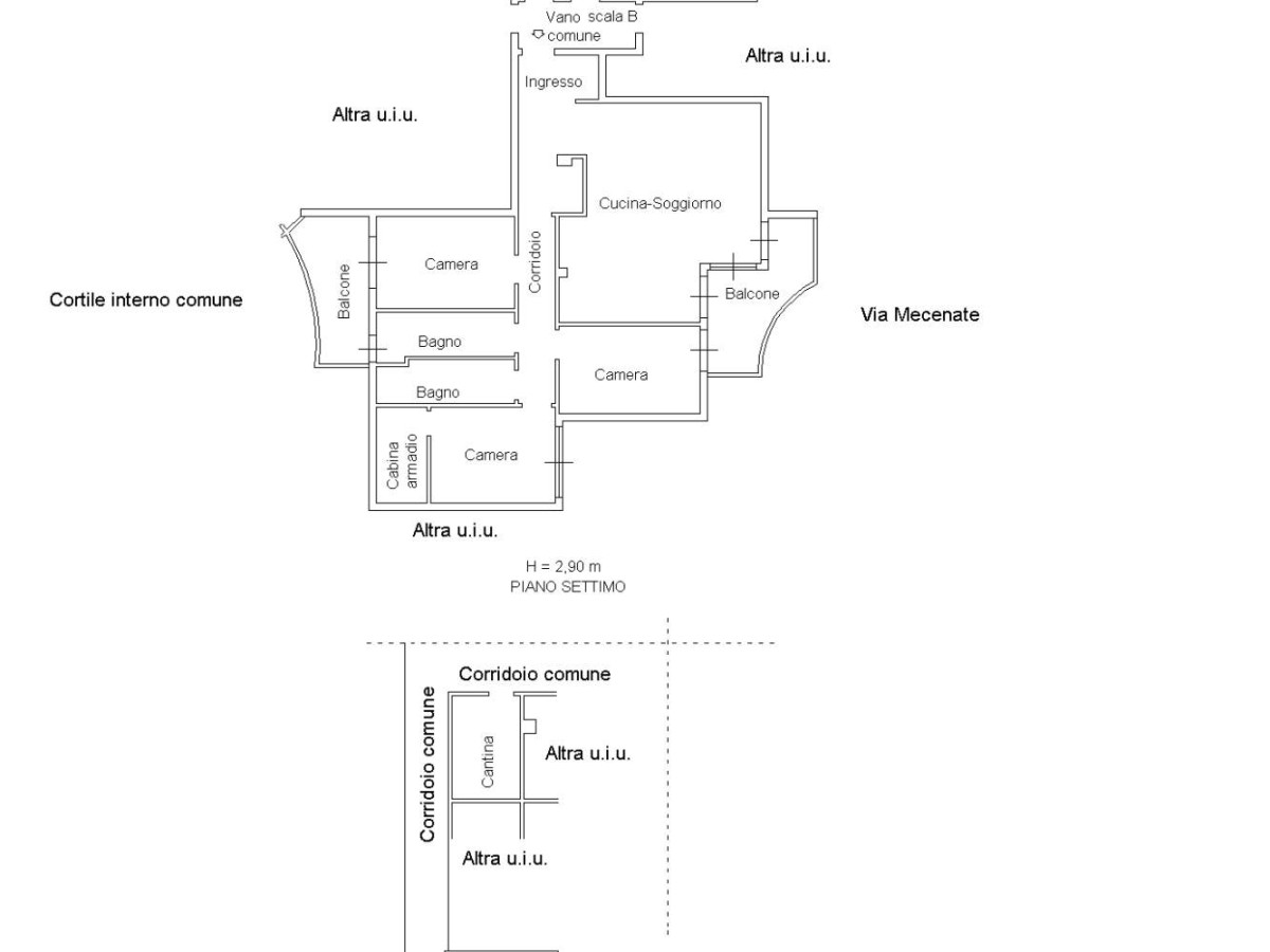
FenixGroup di Via Bergamo 11 propone in vendita un ampio quadrilocale di circa 100 mq situato in Via Mecenate, al settimo ed ultimo piano di uno stabile dotato di ascensore.
L’appartamento, caratterizzato da una doppia balconata panoramica e da una luminosissima esposizione parallela, si presenta così composto:
Ingresso su disimpegno che conduce all’ampio soggiorno con cucina a vista completa di penisola e accesso diretto al balcone principale;
Zona notte composta da due spaziose camere singole, entrambe con accesso alle due balconate contrapposte, e da una camera matrimoniale padronale;
Due bagni, entrambi con box doccia, di cui uno finestrato.
Completano la proprietà una cantina di pertinenza e la possibilità di acquistare un box auto ad € 30.000,00.
Il contesto residenziale è ben servito e collegato, con la presenza nelle immediate vicinanze di supermercati, scuole, banche, uffici postali, bar e ristoranti.
Ottimi i collegamenti con i mezzi pubblici, grazie agli autobus 66 e 45, alla linea tram 27 e alla nuovissima fermata “Repetti” della Metropolitana M4 – Linea Blu, che consente un rapido accesso al centro città e all’aeroporto di Linate.
La presente descrizione ha valore puramente indicativo e non costituisce elemento contrattuale.
Dettagli aggiuntivi
Prestazione Energetica
Planimetrie
Superficie: 100 mqMappa
Vicino a...
Virtual Tour
L'immobile ti interessa?
Visitare questo immobile?
Proprietà proposta da:
 Affiliato: FenixGroup - Milano Montenero
                            Affiliato: FenixGroup - Milano Montenero                             
    
     
                         
                         
                         
                         
                         
                         
                         
                         
                         
                         
                         
                         
                         
                         
                         
                         
                         
                         
             
             
             
             
             
             
             
             
             
             
             
             
             
             
             
             
             
            