Ufficio in vendita Milano
Descrizione
FenixGroup propone in vendita un ampio ufficio di circa 190 mq situato in via Masotto 15, a Milano. L’immobile si trova al piano seminterrato di un palazzo civile degli anni ’70 e dispone di un accesso riservato e indipendente, che si apre su un piacevole giardino privato posto su un lato dell’edificio. Questo spazio esterno non solo valorizza l’ingresso, ma garantisce anche una buona illuminazione naturale agli ambienti interni.
L’ufficio si sviluppa con spazi ampi e ben distribuiti, caratterizzati da una configurazione prevalentemente open space e da una forte luminosità, grazie alla presenza di numerose finestre. All’ingresso, sulla sinistra, si apre una grande zona multifunzionale, adatta a ospitare postazioni operative, un archivio o una sala riunioni, accompagnata da un pratico ripostiglio. Sulla destra, un corridoio conduce ad altri ambienti e al bagno finestrato, con affaccio su via Negroli.
Un ulteriore punto di forza dell’immobile è l’assenza di spese condominiali, in quanto completamente autonomo e separato dal resto dello stabile. Questa caratteristica, unita alla possibilità di valutare un cambio di destinazione d’uso, rende la proprietà una soluzione interessante sia per studi professionali che per chi cerca uno spazio flessibile in una zona ben servita e facilmente raggiungibile.
Dettagli aggiuntivi
Prestazione Energetica
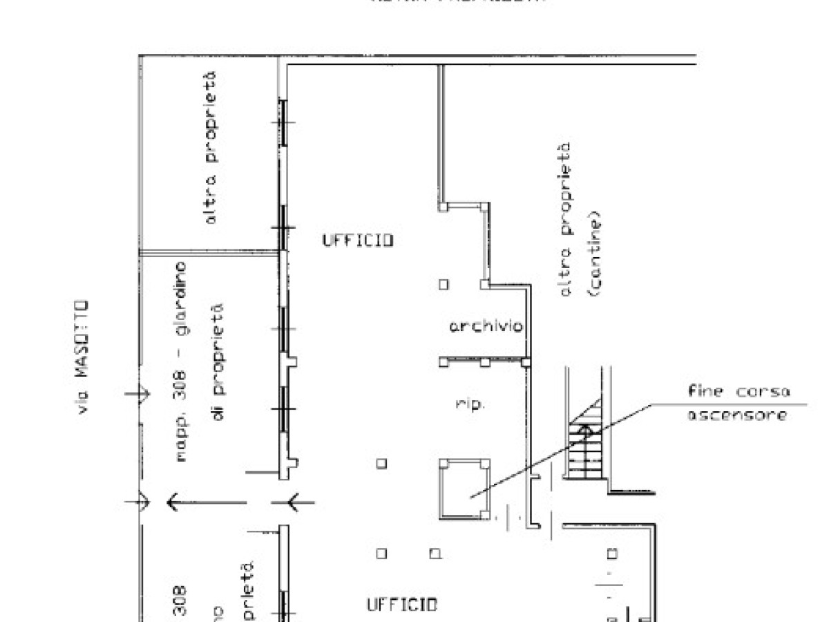
Planimetrie
Superficie: 190 mqMappa
L'immobile ti interessa?
Visitare questo immobile?
Proprietà proposta da:
 Affiliato: FenixGroup - Milano Opera
                            Affiliato: FenixGroup - Milano Opera                             
    
     
                         
                         
                         
                         
                         
                         
                         
                         
                         
                         
                         
                         
                         
                         
                         
                         
                         
                         
                         
                         
                         
                         
                         
                         
                         
                         
                         
                         
                         
             
             
             
             
             
             
             
             
             
             
             
             
             
             
             
             
             
             
             
             
             
             
             
             
             
             
             
             
            