1/3
2/3
3/3

Dettagli principali

€ 22.000

Rif: BoxM18
Milano (MI), Opera
Superficie: 16 mq
Locali: 1.0
Ascensore
Piano Seminterrato di 5° piano
Box
Stampa PDF

Box in vendita a Opera

Annuncio aggiornato il 03/12/2025 ore 11:19

Fenixgroup propone in vendita un comodo box di 16 mq situato in via Moneta a Opera. 


Il box ampio e versatile, situato in una struttura ben posizionata, facilmente accessibile e dotata di ottime condizioni di sicurezza. L’ambiente, grazie alle sue dimensioni generose, si presta sia al parcheggio di un’auto sia all’utilizzo come spazio aggiuntivo per il deposito di attrezzature, materiali o oggetti personali. La zona è tranquilla e ben servita, con collegamenti agevoli verso i principali servizi, i mezzi di trasporto e le principali vie di comunicazione, rendendo gli spostamenti semplici e immediati. Si tratta di una soluzione pratica, funzionale e strategicamente collocata, ideale per chi desidera un ambiente comodo e affidabile in un contesto ordinato e di facile fruizione.


Questa descrizione ha valore puramente indicativo e non rappresenta elemento contrattuale.

Dettagli aggiuntivi


Conservazione: Buono
Classe: Economica
Esposizione: Interna
Lati liberi: Due, paralleli

Prestazione Energetica


Esente
IPE: 175 kWh/m2
Riscaldamento: Assente
Nuova costruzione

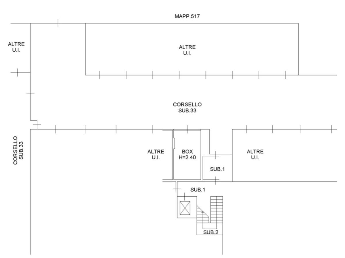
Planimetrie

Superficie: 16 mq

Mappa

Virtual Tour

L'immobile ti interessa?


Ho letto, compreso e accetto la privacy policy.

Ricevi immobili simili a questo da FENIXGROUP.

Visitare questo immobile?


Proprietà proposta da:


logo Fenixgroup Affiliato: FenixGroup - Milano Opera
Via Emilio Gino Segrè, 24 - 20073 Opera
0247750112
opera@grfenix.com