1/23
2/23
3/23
4/23
5/23
6/23
7/23
8/23
9/23
10/23
11/23
12/23
13/23
14/23
15/23
16/23
17/23
18/23
19/23
20/23
21/23
22/23
23/23

Dettagli principali

€ 450.000

Rif: tic10
Milano (MI), Opera
Superficie: 1800 mq
Locali: 10.0
Bagni: 5
Giardino Privato
Posto Auto
Stampa PDF

Capannone industriale in vendita a Opera

Annuncio aggiornato il 20/01/2026 ore 17:55

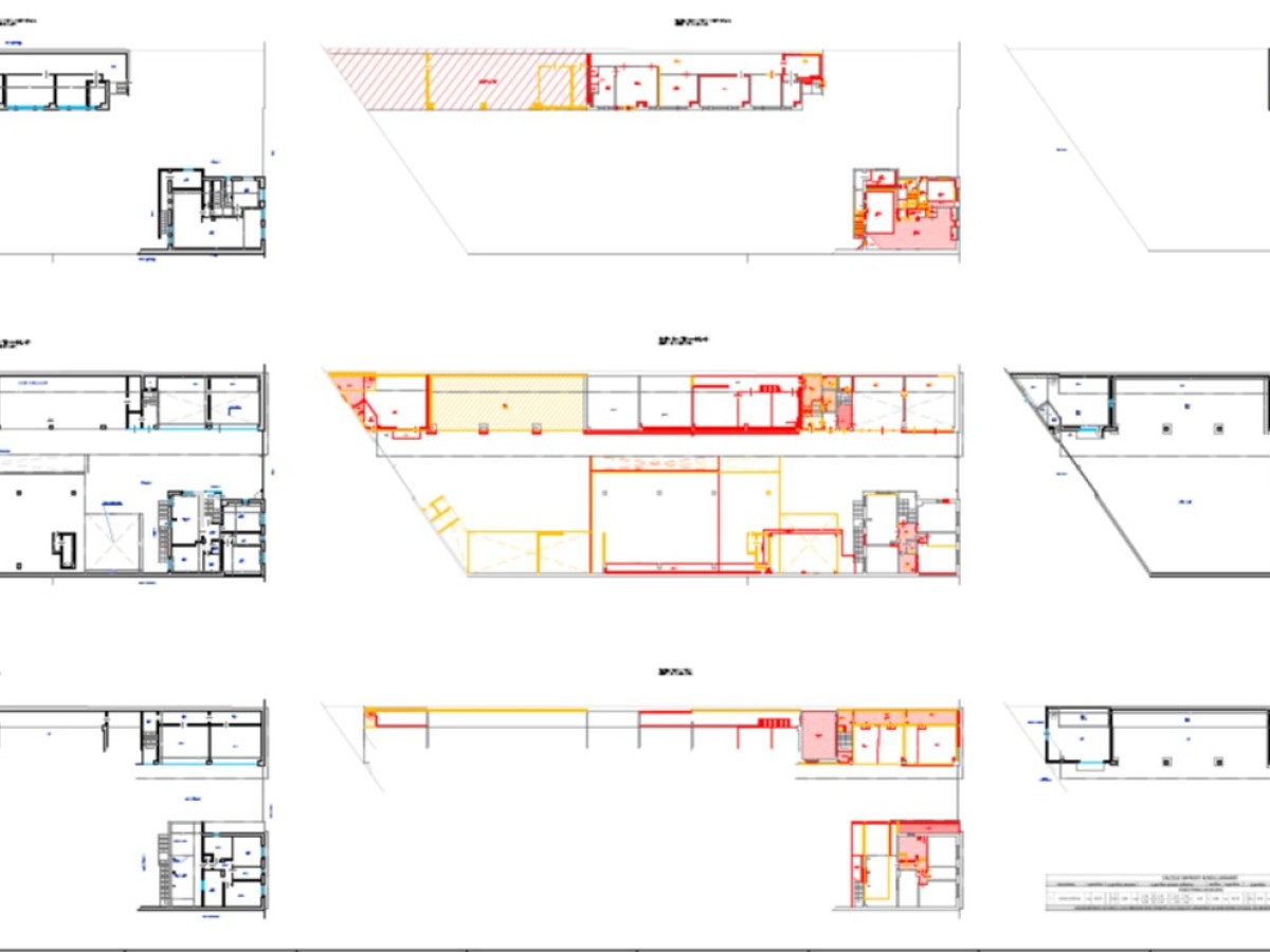
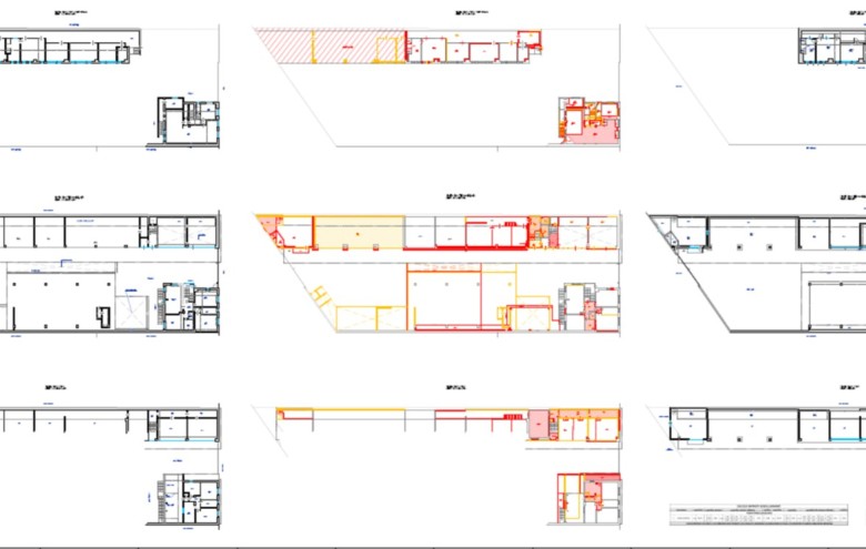
FenixGroup propone in vendita un ampio complesso a uso misto residenziale e industriale situato in via Ticino 10 a Opera, in posizione strategica e ben servita. L’immobile, con una superficie complessiva di circa 1800 mq, è composto da più corpi di fabbrica sviluppati su tre livelli, con spazi ampi e versatili ideali per attività produttive, artigianali o logistiche.


All’interno del complesso si trova una palazzina indipendente che ospita tre appartamenti, di cui due ad uso ufficio e uno ad uso residenziale. Gli ambienti risultano luminosi e facilmente personalizzabili in base alle proprie esigenze.


La proprietà è dotata di un impianto fotovoltaico composto da 40 pannelli solari attivi per la produzione di energia elettrica, con vendita diretta allo Stato e conseguente rendita mensile costante. L’impianto garantisce un notevole risparmio energetico e rappresenta un valore aggiunto importante sotto il profilo economico ed ecologico.


Completano la proprietà un ampio cortile privato che consente agevoli manovre ai mezzi pesanti e due ingressi indipendenti con passi carrai, che affacciano su vie parallele. Queste caratteristiche rendono il complesso estremamente funzionale e facilmente accessibile anche per attività che richiedono spazi di carico e scarico.


La costruzione, solida e ben mantenuta, conserva le caratteristiche tipiche degli edifici industriali di qualità, offrendo tuttavia la possibilità di ristrutturare e personalizzare gli spazi secondo le proprie necessità.


La posizione dell'immobile è comoda e ben collegata alle principali arterie stradali e ai mezzi pubblici, a breve distanza dal centro città e dalla stazione di ricarica per veicoli elettrici e altri servizi essenziali.


Si tratta di una soluzione ideale per chi desidera coniugare abitazione, lavoro e investimento, grazie alla combinazione di spazi produttivi, uffici e unità residenziali. L’immobile è libero e immediatamente disponibile, pronto per essere adattato alle esigenze di chi cerca una proprietà completa, funzionale e dal grande potenziale.


Questa descrizione ha valore puramente indicativo e non costituisce elemento contrattuale.

Dettagli aggiuntivi


Conservazione: Da Ristrutturare
Classe: Economica
Ingresso: Indipendente
Esposizione: Esterna
Lati liberi: Quattro

Prestazione Energetica


 
 
C
 
 
 
 

IPE: 175 kWh/m2
Riscaldamento: Autonomo
Tipo riscaldamento: Radiatori
Alimentazione: Metano
Nuova costruzione

Planimetrie

Superficie: 1800 mq

Mappa

Virtual Tour

L'immobile ti interessa?


Ho letto, compreso e accetto la privacy policy.

Ricevi immobili simili a questo da FENIXGROUP.

Visitare questo immobile?


Proprietà proposta da:


logo Fenixgroup Affiliato: FenixGroup - Milano Opera
Via Emilio Gino Segrè, 24 - 20073 Opera
0247750112
opera@grfenix.com