Casa indipendente in vendita Sacra famiglia
Descrizione
FenixGroup Real Estate Padova propone in vendita in esclusiva una soluzione indipendente di ca. 204 mq in Via Eritrea, 16.
L'immobile, totalmente ristrutturato, si sviluppa su due livelli.
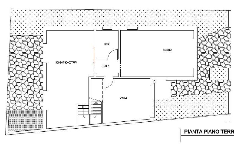
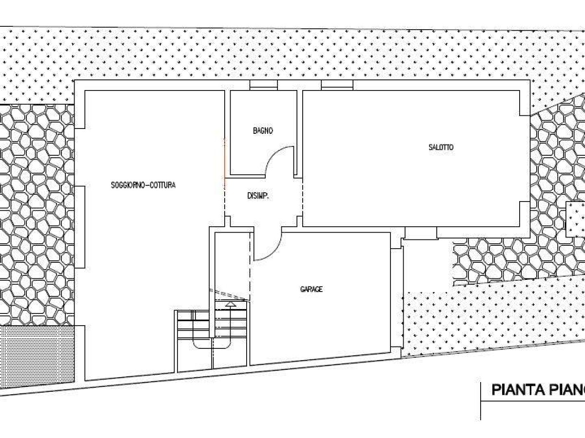
Al piano terra troviamo un ingresso sull'ampio soggiorno e una zona pranzo, anch'essa di ampia metratura, con cucina a vista. A conclusione del piano terra vi è un bagno finestrato ed un box auto con accesso diretto all'interno dell'immobile.
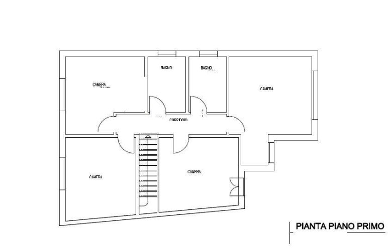
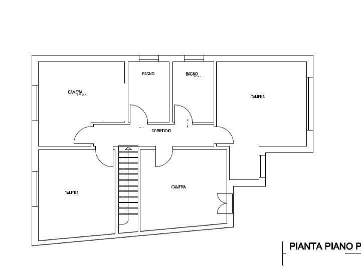
Al piano primo vi sono quattro camere da letto matrimoniali e due bagni finestrati.
L'immobile è circondato da un giardino privato su tre lati, godendo di un'esposizione Nord/Est/Ovest.
Vi sono infissi in vetro doppio/PVC, riscaldamento autonomo a pavimento ed aria condizionata.
STABILE: Lo stabile, grazie alla ristrutturazione totale, è in perfetto stato. E' stato installato l'impianto fotovoltaico, con batterie e ricarica auto. Vi è poi la predisposizione solare termico, ovvero un sistema che integra un pannello solare termico per produrre acqua calda sanitaria, sfruttando l'energia del sole per ridurre/eliminare il fabbisogno di combustibili fossili/elettrici per il riscaldamento dell'acqua. L'intero immobile è full electric ma con predisposizione anche a gas
ZONA: L'immobile è ubicato in una zona residenziale molto tranquilla, ma allo stesso tempo vicinissimo al centro e ai principali servizi, come supermercati, farmacie, tabaccai, nonché alla fermata del bus, rendendo molto agibile il collegamento con il resto della città.
Questa descrizione ha valore puramente indicativo e non rappresenta elemento contrattuale.
Dettagli aggiuntivi
Prestazione Energetica
Planimetrie
Superficie: 204 mqMappa
L'immobile ti interessa?
Visitare questo immobile?
Proprietà proposta da:
 Affiliato: FenixGroup - Padova
                            Affiliato: FenixGroup - Padova                             
    
     
                         
                         
                         
                         
                         
                         
                         
                         
                         
                         
                         
                         
                         
                         
                         
                         
                         
                         
             
             
             
             
             
             
             
             
             
             
             
             
             
             
             
             
             
             
 
                                