Locale commerciale in vendita San benedetto del tronto
Descrizione
LOCALE COMMERCIALE IN POSIZIONE STRATEGICA – SAN BENEDETTO DEL TRONTO
La FenixGroup di San Benedetto del Tronto propone in vendita un elegante locale commerciale in Via Trentino 5, nel cuore pulsante della città e a pochi passi dal suggestivo Ponte dell’Abula.
Una location di assoluto prestigio, tra le più servite e dinamiche di San Benedetto, ideale per chi desidera avviare o trasferire un’attività in una zona ad alta frequentazione, ben collegata e in continua evoluzione.
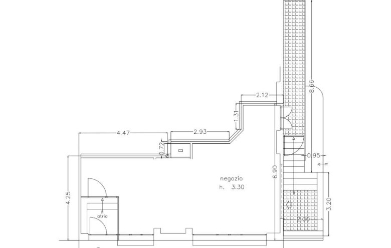
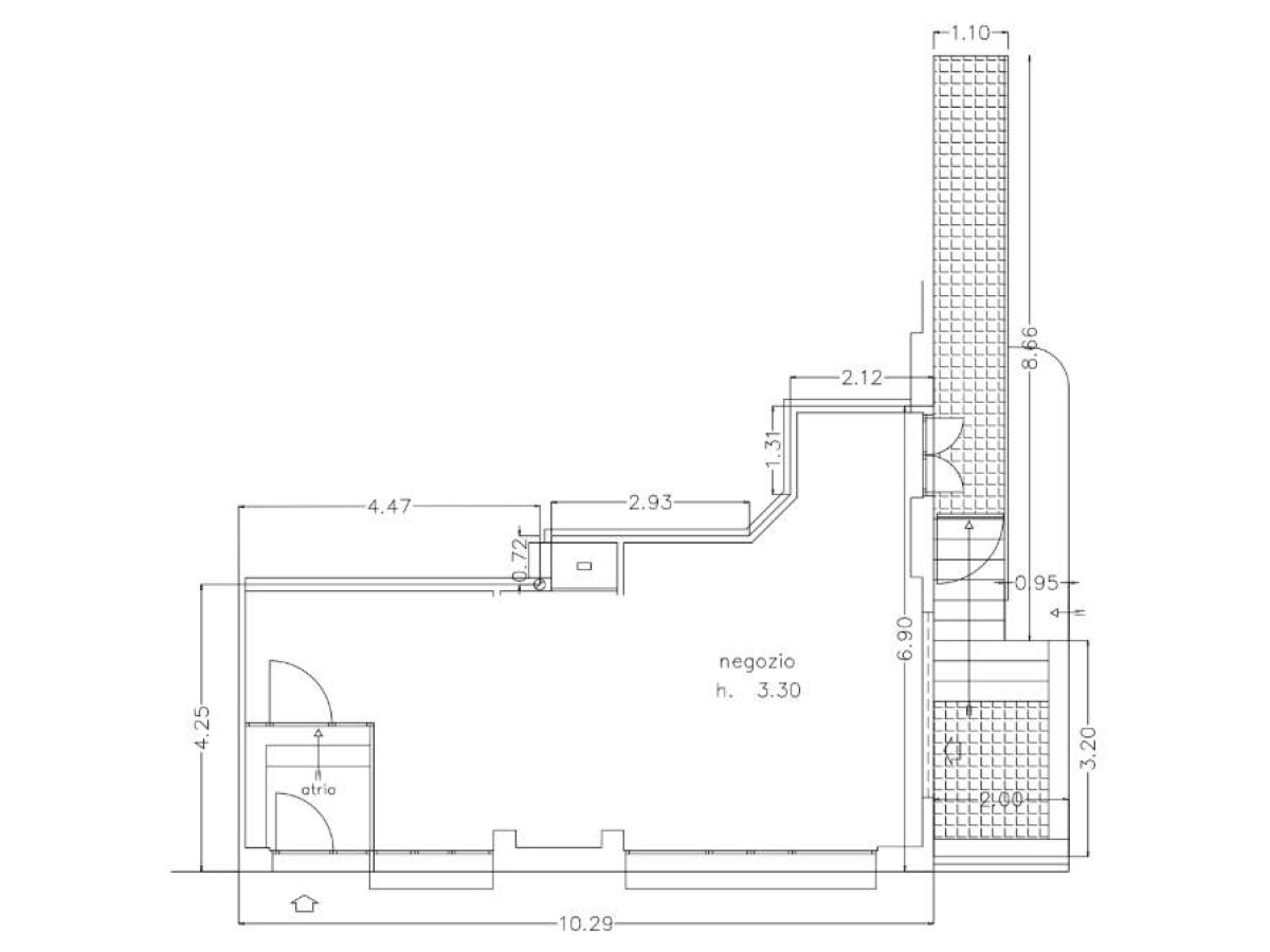
L’immobile, di circa 50 mq, si trova al piano terra e si distingue per la disposizione razionale degli spazi e l’elevata funzionalità, offre interessanti margini di personalizzazione e trasformazione a seconda delle esigenze specifiche dell’acquirente.
L’ingresso conduce a un piccolo atrio che introduce in un ampio open space estremamente luminoso, grazie alla presenza di due grandi vetrine con affaccio diretto su Via Trentino. 
Una soluzione che garantisce massima visibilità e un forte impatto visivo sulla clientela.
Dalla zona principale si accede a un balcone posteriore, mentre una scala esterna conduce a un comodo magazzino di circa 25 mq, dotato di finestre a bocca di lupo, ideale come deposito o archivio.
L’immobile è dotato di infissi in alluminio con doppio vetro e impianto di climatizzazione caldo/freddo, elementi che assicurano comfort e un buon isolamento termico e acustico.
Il contesto urbano in cui si inserisce è vivace, ricco di attività commerciali e caratterizzato da un costante flusso pedonale e veicolare, elemento chiave per garantire visibilità e successo a qualsiasi tipo di impresa.
Questa è un’opportunità unica per acquistare un locale commerciale raffinato, versatile e pronto a valorizzare ogni progetto imprenditoriale, in una delle zone più strategiche e ricercate di San Benedetto del Tronto.
Dettagli aggiuntivi
Prestazione Energetica
Planimetrie
Superficie: 75 mqMappa
Vicino a...
Virtual Tour
L'immobile ti interessa?
Visitare questo immobile?
Proprietà proposta da:
 Affiliato: FenixGroup - San Benedetto del Tronto
                            Affiliato: FenixGroup - San Benedetto del Tronto                             
    
     
                         
                         
                         
                         
                         
                         
                         
                         
                         
                         
                         
                         
                         
                         
                         
             
             
             
             
             
             
             
             
             
             
             
             
             
             
             
 
                                