Appartamento in vendita Villasanta
Descrizione
In Viale della Vittoria, una delle zone più centrali e servite di Villasanta, proponiamo in vendita un trilocale situato al primo piano di una piccola palazzina senza spese condominiali. La posizione è particolarmente comoda per chi desidera vivere in un contesto residenziale tranquillo, ma a pochi passi da scuole, negozi, mezzi pubblici e dal centro del paese.
L’appartamento è attualmente oggetto di una completa ristrutturazione e verrà consegnato finito in ogni sua parte, con particolare attenzione alla qualità dei materiali e alla funzionalità degli spazi. Saranno completamente rifatti tutti gli impianti, sia elettrico che idraulico, verranno installati infissi nuovi ad alta efficienza energetica, e l’intero appartamento sarà rifinito con uno stile moderno e lineare.
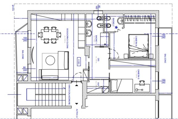
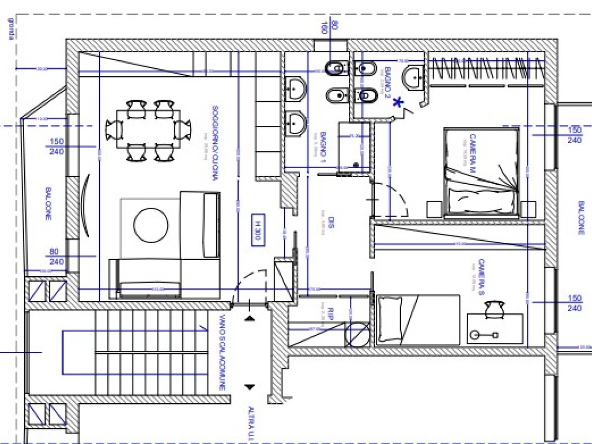
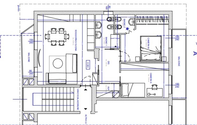
L’ingresso si apre su un soggiorno ampio e luminoso, con cucina a vista, pensato per creare un ambiente conviviale e accogliente. La zona giorno si affaccia su due balconi paralleli che garantiscono una buona esposizione e una gradevole luce naturale durante tutto l’arco della giornata. La disposizione interna prosegue con due camere da letto ben proporzionate e un bagno finestrato anch'esso completamente ristrutturato.
A completamento della proprietà è presente una cantina molto spaziosa, di circa 20 metri quadrati, ideale per essere utilizzata non solo come deposito, ma anche come locale hobby o spazio aggiuntivo di servizio.
Per chi avesse necessità di un’autorimessa, vi è la possibilità di acquistare a parte un box doppio in lunghezza al prezzo di 25.000 euro, situato nelle immediate vicinanze.
Questa soluzione rappresenta un’ottima opportunità per chi cerca un’abitazione pronta all’uso, moderna e funzionale, in un contesto privo di spese comuni e in una posizione altamente strategica.
Per ulteriori informazioni o per concordare una visita in cantiere, non esitate a contattarci.
Dettagli aggiuntivi
Prestazione Energetica
Planimetrie
Superficie: 90 mqMappa
L'immobile ti interessa?
Visitare questo immobile?
Proprietà proposta da:
 Affiliato: FenixGroup - Concorezzo
                            Affiliato: FenixGroup - Concorezzo                             
    
     
                         
                         
                         
                         
                         
                         
                         
                         
                         
                         
             
             
             
             
             
             
             
             
             
            